こんにちは!リノベーションの施工会社のa-techです。
こちらのページでは、a-techのリノベーションの事例をご紹介しています。
Before画像
施工は1階については全体、2階は2部屋にてご提案させていただきました。
まずは1階の施工前の写真から。
1階
このように、昔ながらの内装デザインでした。
床材や建具の色味やデザインがどことなく懐かしい印象を与えます。
内装はすべてリノベーションを施すため、
こちらの1階はお部屋を梁や柱のみ残してまるまる解体しました!
続いて2階。
201
水回りは3点ユニットで、内装も1階同様にどこか懐かしい雰囲気。
そんな時、水回りの交換のみしてしまいがちですが、内装との調和の取れていない室内は、想像よりも賃料を上げられないことも多いです。
賃料をあげ、資産価値を向上させるためには現在の暮らし方に合わせ間取りから変えてしまうリノベーションは相性が良いです。
こちらもすべて解体して1からのお部屋作りとなります。
202
となりの202号室も同様に。
さてここからどんなお部屋が出来上がるのでしょうか・・・!
外構
なお、今回は内装だけでなく外構も改修します。
改修前は上記のように、一般的な一戸建てのような内装。
ここからどのようなテイストのアパートに仕上がるのでしょうか・・・!わくわく。
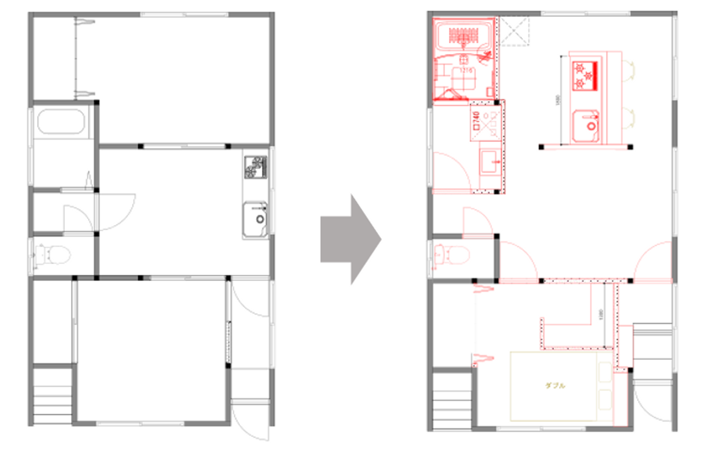
間取り図
間取りについては下記のようにリノベーションされました。
(左がbefore、右がafter)
101
201・202
実際のリノベーション後の写真とポイント解説はこちら↓
リノベーション内容
憧れのアイランドキッチンに住まう
101
賃貸物件では珍しい、アイランドキッチンを採用しました。
賃貸では敬遠されがちな一階でも、唯一無二の設備を導入することで強みになります。
キッチンの反対側にはコンセント付きのカウンターもあるので、ここでご飯を食べたり、仕事をしたりといろいろな使い方ができそう。
アクセントクロスも清潔感のある水色で爽やかですね。
床材は、天然の無垢材を使って一般的な賃貸物件にはない高級感を出しています。自然志向が流行でもあるので無垢床のお部屋に住みたい!という方も多いんですよ。
寝室も、部屋に対する窓が大きく明るいですね。
ちょっとした棚を造作することでインテリアも楽しめそう!
玄関はグレーのタイルでスタイリッシュに仕上げました。上部に窓があるので暗い印象を与えません。
靴棚として造作棚を設けているので、収納力もばっちりですね。
201
無垢材と白建具淡いカラーのアクセントクロスの相性はばっちり。
清潔感のあるナチュラルスタイルのお部屋が出来上がりました!
お部屋の奥には、大容量の収納スペースがあります。
洋服も、大きな荷物もたくさん入りそうですね!
ちなみに造作棚の高さは好きな高さに変更できますよ。
キッチンはこだわりの造作で仕上げています。
2面の窓に囲まれたキッチンは明るさを強調するために水色のタイルを施工。
コンパクトなつくりでも、2口コンロにして料理のしやすさも諦めません。
玄関は白のスクエアタイル貼りで仕上げました。
土間部分が広いため、ちょっとしたアウトドア用品なんかも置けそうですね。
202
こちらも無垢床×白×ブルーをテーマに。
清潔感がある中にも、スポットライトやライティングレールで遊び心をお部屋にプラスしています。
キッチンはコンパクトですが、タイル貼りにすることでプレミアム感が出ますね。
世界に一つだけのキッチンなのでとっても料理するのが楽しそう。
省スペースながらも、独立トイレと独立洗面台を設置しています。
洗面部分の壁面はなんと全面タイル貼り!とっても贅沢ですね。
温水洗浄便座付きのトイレは、賃貸物件ならば非常にポイントが高いです。
周りの物件に一歩差をつけられます!
玄関は201同様、白のスクエアタイルを。
ドアを開けて部屋が直接見えるわけではないので安心です。
コート掛けや鏡が備え付けられているのも地味にうれしい。
外観
土間うちコンクリートにフェンスをつけて、1階のベランダには目隠しのルーバーを。
防犯性もばっちりです。
外壁の色はツートンカラーにしてモダンな雰囲気になりました。
2階へ続く階段の手前には宅配ボックスも!
日中お仕事でお部屋にあまりいないという方でも安心ですね。
さて、次はどんなお部屋が作られるのか・・・?
次回も乞うご期待ください!
現在、a-techでは下記のポジションを募集しています。
①セールス 詳細はこちら
【お願いしたい主なお仕事】
・現地調査
・内装のプランニング
・リノベーションのお見積り
・お客様へのご提案
・お客様へのお引渡し
②施工管理 詳細はこちら
【お願いしたい主なお仕事】
・現地調査
・内装のプランニング
・施工業者への発注
・工程管理
【こんな方にオススメ】
・スタートアップ企業で自己成長したい方
・不動産や建築の知識をつけたい方
・若い組織で活気よく和気あいあいと働きたい方
・将来独立するビジネススキルを身に着けたい方
【歓迎する職歴・スキル】
・リノベーション工事営業経験
※未経験の場合、建築関連の仕事に従事していれば検討可
・1級及び2級建築士(資格手当あり)
・施工管理技士(資格手当あり)
・Excel、Word、PowerPointなどPC基本操作が可能な方