はじめに
こんにちは、BULB株式会社の阿部です。
この記事では弊社で開発しているプロダクト、AutoFloorについてゆるーく紹介していきます。
AutoFloorとは
弊社ではオフィス向けのVRプロダクトを開発しています。企業がオフィスに入居検討していたり引っ越しを検討している時などに現地に行かずにブラウザだけあればクラウドで内覧を行えるというサービスです。最近は不動産領域でも多数のVRプロダクトが導入されていますが、大きく分けて実写とCGの2種類があります。実写は360度写真を撮影してつなぎ合わせてGoogle Street Viewのように見せる方法で、既に一般的に普及しています。
我々はCGのアプローチをとっており、CGならではの表現やプロダクトの価値を追求しています。CGの領域は旧来の建築領域ではBIMと呼ばれるアプローチで設計図面の3D表現などが発達中ですが、弊社ではそれと別のアプローチでより一般的にユーザの手に届く安価で広く配布するプロダクトを設計しています。
現在の機能としては大きく分けて図面のVR化と、家具の自動レイアウトという二つのラインナップを開発中です。
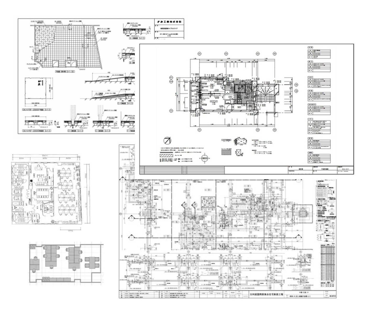
オフィス間取り図自動VR化
間取り図を読み込んでVR化するためにはいくつかのステップが必要になります。
1.図面の読み取り
ユーザが手元にもっている図面を、AutoFloorで解釈できる形に変換します。ユーザがもっている図面は様々な形式が考えられます。
・CAD図面
・CADからはき出したPDF図面
・CADの内容を編集してパンフレットに掲載する形に加工した図面
・Webサイトに掲載するためにイラストレータなどでより簡易的な内容に加工した図面
・データが存在せず紙の情報だけがある図面
など様々です。これらの図面を画像に変換して余分な情報を排除して必要な情報を抜き出して、その情報を整理分類して壁、窓、ドアなどをはじめとしたAutoFloorとして必要な情報を抜き出していきます。AI的アプローチや、画像認識、画像加工などの様々なアプローチを組み合わせています。
2.家具配置
家具の配置は後述する仕組みで自動化を目指していますが、手作業でも微修正を行う必要があります。AutoFloorでは家具や間取りのレイアウトを編集するためのレイアウトデザイナーをクラウド上に用意しております。
3.VRに変換
用意された図面を3DCGに変換してクラウド上で操作できるようにします。弊社でオリジナルで開発しているTarumaeという自社製の3Dレンダリングエンジンを利用しています。Tarumaeの特徴としては、WebGLと不動産用とに最適化されているため、ブラウザ上で物件内覧をする用途では抜群のパフォーマンスを発揮してくれます。UnityやUnrealのような汎用ツールよりも遙かに高いパフォーマンスが実現できています。
オフィス家具自動レイアウト
一般的にオフィスのレイアウトを行うためには、まずオフィスの躯体となる基本的な図面を家具屋さんとかレイアウト業者に持ち込んで手作業で机の配置とか会議室の間仕切りとかを考えてもらうことになります。
ただ、オフィスの間取り図なんてある程度パターンがありそうだし、机の配置とかも余程凝らない限りは結構パターン化できるんじゃない?という思想で自動化の研究をしています。
レイアウトの自動配置を行うには以下のようなステップが必要になります。
1.希望条件の入力
ユーザが希望する間取りの条件をインプットします。席数とか会議室の割合とか、ゆったり目が良いとか、クリエイティブ空間にしたいとか色々なアンケートをとります、これが最終的にパラメータとなってレイアウト結果に反映されます。
2.間取り図面のエリアの分割
図面を領域に分割していきます。執務エリア、机エリア、通路エリア、入り口エリアなどを自動的に分割します。こだわりのある箇所があれば手作業で分割もできるようにしておきます。
3.自動家具レイアウト
分割されたエリアについて家具を配置してきます。最初の希望条件に加えて、希望する家具のサイズや個数など様々な家具のパラメータと働き方条件を照らし合わせていくつかのレイアウトパターンを提示します。
これらの工程を経てレイアウトの自動配置を行っていきます。これらの機能は現在まだ開発途中ではありますが、今後少しずつリリースして行く予定です。お楽しみに!
最後に
オフィス不動産の分野は不動産テックの中でもまだまだ未開拓の領域です。最新のテックとは分断されている領域でもあるため、市場としても大きな可能性を秘めているはずです。技術的にもAIやVRなど多くのチャレンジングなことを行っておりますので、ご興味もたれた方は是非一度お話聞きに来てください。お待ちしております!